Описание
Характеристики
Отзывы
Описание
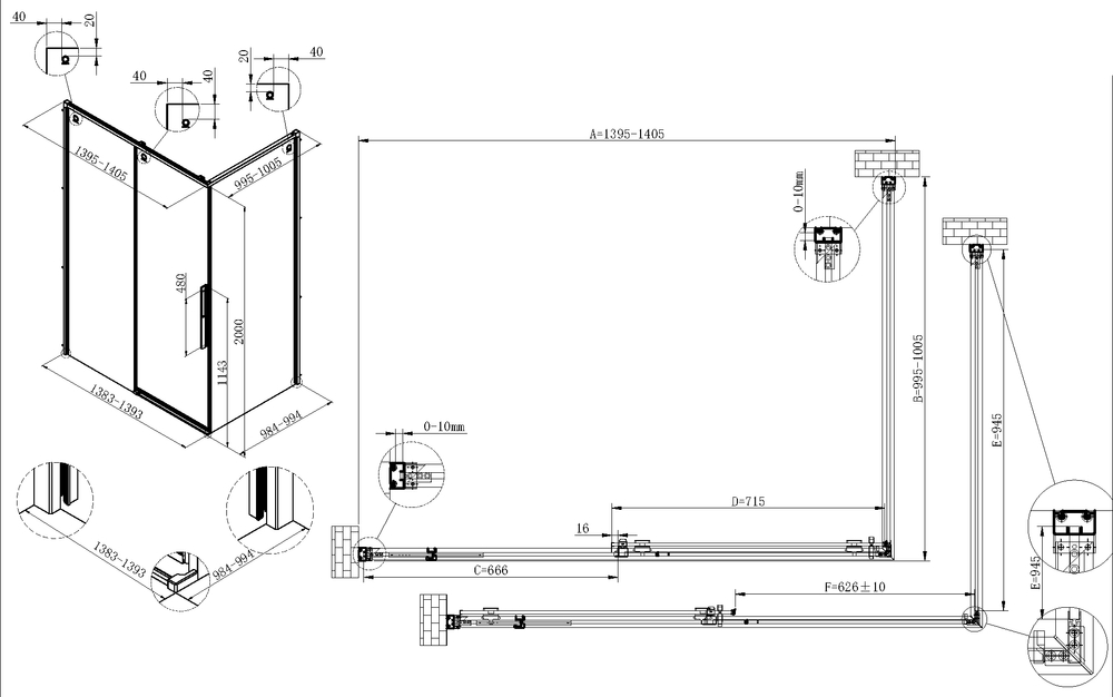
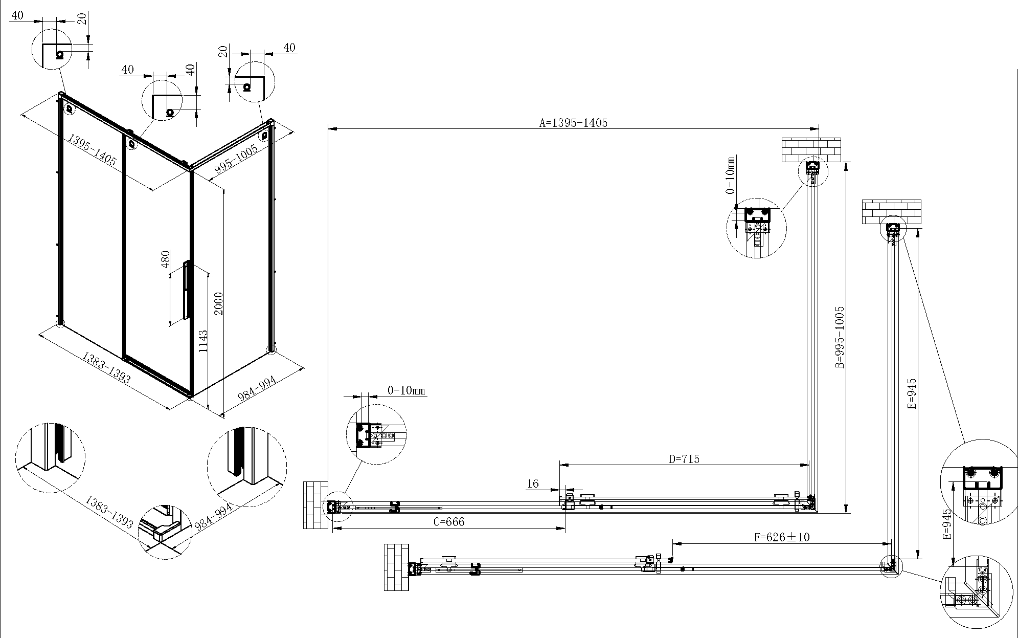
Доводчики закрывания двери, ручка 480мм
Металлическое тело роликов
Характеристики
Тип товара
Душевой уголок
Материал
алюминий
Цвет
вороненая сталь
Ширина, мм
1400
Высота
2000
Глубина, мм
1000
Форма
прямоугольная
Коллекция
Ultima
Тип открывания дверей
раздвижная
Кол-во дверей
1
Толщина стекла, мм
8
Тип стекла
прозрачное
Обработка стекла
Easy Clean
Регулировочные размеры
1395-1405 x 995-1005
Ширина входа, мм
628±10
Отзывы
Отзывов еще никто не оставлял
